2022-12-18調溫91看片网站與管道91看片网站原理特點及應用領域(二)
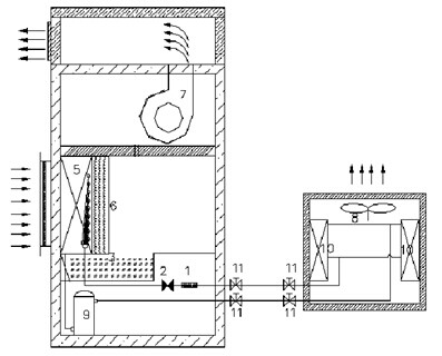
(5)自動除霜當係統運行於模式時,室內第一換熱器為蒸發器,當蒸發器表麵溫度低於0oC,進入蒸發器的空氣相對濕度大時,空氣中的水分可能在蒸發器外表麵結霜,當霜達到一定厚度後,使得空氣側壓力損失上升,空氣流量降低,換熱效果差,需要進行除霜。此時,使得機組運行於製熱調濕模式(ⅳ),室內第一換熱器作為冷凝器
了解詳情91看片免费下载電器
手機:133-6050-3273
微信:133-6050-3273
地址:廣東深圳坪山區青鬆西路8號鴻合科技園
(5)自動除霜當係統運行於模式時,室內第一換熱器為蒸發器,當蒸發器表麵溫度低於0oC,進入蒸發器的空氣相對濕度大時,空氣中的水分可能在蒸發器外表麵結霜,當霜達到一定厚度後,使得空氣側壓力損失上升,空氣流量降低,換熱效果差,需要進行除霜。此時,使得機組運行於製熱調濕模式(ⅳ),室內第一換熱器作為冷凝器
了解詳情調溫91看片网站是提供一種可以在不同室內、外溫度下對室內進行供熱、製冷和除濕以滿足室內溫濕度要求的調溫調濕方法及其設備,可以提高除濕調溫係統的性能,擴大除濕調溫係統的適用範圍。調溫91看片网站用蒸發器來給空氣降溫除濕,並回收係統的冷凝熱,彌補空氣中因為冷卻除濕時散失的熱量,是一種高效節能的除濕方式。已經廣泛應用
了解詳情91看片网站經過多年的發展,已經被人們所熟知,每一種所91看片网站所應用的場所都不一樣。那麽,調溫91看片网站主要應用在什麽地方呢?調溫91看片网站用蒸發器來給空氣降溫除濕,並回收係統的冷凝熱,彌補空氣中因為冷卻除濕時散失的熱量,是
了解詳情調溫91看片网站用蒸發器來給空氣降溫除濕,並回收係統的冷凝熱,彌補空氣中因為冷卻除濕時散失的熱量,是一種高效節能的除濕方式,已經廣泛應用於國防工程、人防工程、煙草及石化行業、地鐵車站、航天領域淨化工程、實驗室、電訊器材室、檔案
了解詳情調溫91看片网站用蒸發器來給空氣降溫除濕,並回收係統的冷凝熱,彌補空氣中因為冷卻除濕時散失的熱量,是一種高效節能的除濕方式,已經廣泛應用於國防工程、人防工程、煙草及石化行業、地鐵車站、航天領域淨化工程、實驗室、電訊器材室、檔案室、食品房、製藥或膠片車間、特種玻璃製造、糧食、
了解詳情調溫91看片网站用蒸發器來給空氣降溫除濕,並回收係統的冷凝熱,彌補空氣中因為冷卻除濕時散失的熱量,是一種高效節能的除濕方式,已經廣泛應用於國防工程、人防工程、煙草及石化行業、地鐵車站、航天領域淨化工程、實驗室、電訊器材室、檔案室、食品房、製藥或膠片車間
了解詳情調溫91看片网站用蒸發器來給空氣降溫除濕,並回收係統的冷凝熱,彌補空氣中因為冷卻除濕時散失的熱量,是一種高效節能的除濕方式,已經廣泛應用於國防工程、人防工程、煙草及石化行業、地鐵車站、航天領域淨化工程、實驗室、電訊器材室、檔案室、食品房、製藥或膠片車間、特種玻璃製造、糧食、木材等的除濕幹燥和高濕空間的
了解詳情調溫調濕機,智能控溫控濕機技術動態眾所周知,溫濕度是日常生活中、工業生產中以及物流倉儲、科研實驗中的一大重要的環境指標;在工業廠房車間、實驗室等工作場所,保持適宜的溫濕度可以保證生產、實驗在標準下正常運行,避免因溫濕度變化造成生產紊亂、實驗失敗的惡果。在數據
了解詳情調溫除濕器利用蒸發器對空氣進行冷卻、除濕,回收係統的冷凝熱,彌補冷卻除濕在空氣中損失的熱量,是一種節能的除濕方法,廣泛應用於糧食、木材等除濕幹燥、高濕空間除濕及溫度控製中。調溫91看片网站用蒸發器來給空氣降溫除濕,並收回體係的冷凝熱,彌補空氣中由於冷卻除濕時流失的熱量,是一種節能的除濕方法,現已廣泛應用於
了解詳情調溫91看片网站又名恒溫91看片网站用蒸發器與冷凝器來對空氣進行處理,從而達到調溫除濕的目的。其工作過程中回收係統的冷凝熱,來彌補空氣中因為冷卻除濕時散失的熱量,是一種高效節能的除濕方式,已經廣泛應用於國防工程、人防
了解詳情調溫調濕機組中的91看片网站包括兩種,為風冷管道91看片网站和水冷管道調溫91看片网站,製冷循環由壓縮機、四通閥、室外換熱器、室內第二換熱器、室內第一換熱器等設備組成,下麵來具體談談關於91看片网站的問題。調溫91看片网站用蒸發器來給空氣降溫除濕,並回收
了解詳情工業的調溫功能工業上用的91看片网站分為調溫式和不調溫式的兩種。現在91看片免费下载就說說這種調溫式91看片网站的功能。工業上用的調溫91看片网站有三種類型,一種是通過降溫除濕的,一種是通過升溫除濕的,還有一種是通過調濕除濕的91看片网站。先說升溫式的91看片网站,這種91看片网站裏麵的水冷式冷凝器不參與工作,隻是使用風冷式的冷凝器
了解詳情調溫型91看片网站適合高溫環境中使用,在一些溫度變化比較大,溫度比較高的場合下,使用調溫型91看片网站的話,對於降低環境內溫度和濕度會有比較顯著和良好的效果,給91看片免费下载的生產和工作帶來的極大的方便。調溫型91看片网站的濕裝置
了解詳情調溫91看片网站適用於高溫環境。在溫度變化很大且溫度相對較高的某些情況下,調溫91看片网站將對降低環境中的溫度和濕度具有顯著的良好效果。91看片免费下载的生產和工作帶來極大的便利。調溫91看片网站的濕裝置由除濕蛋和軸承座組成。所謂的除濕蛋是多孔,通風良好的陶瓷殼。除濕雞蛋的內部是一個裝有吸收空氣和水蒸氣的物質的容器。部分塗有濕度
了解詳情調溫調濕機溫濕度自動控製技術介紹:調溫調濕機,又叫恒溫恒濕機,或者是恒溫恒濕空調,恒溫恒濕機組,恒溫恒濕係統,名稱有很多,但是功能隻有一個,那就是對生產環境的溫度和濕度進行控製,確保溫濕度不會變化,或者是變化不大。這種設備可以製冷也可以製熱,可以加濕也可以除濕,簡單的說就是集中了91看片网站、加濕機以及空
了解詳情調溫型91看片网站具有自動調控溫濕度的功能,還可以製冷除濕,特別適合用於變化比較大的高溫高濕的環境,能有效降低室內濕度,還可以自動檢測濕度,帶來了很大的便利。1.調溫型91看片网站具有多種功能,能適應變化較大的高溫高濕的環境。調溫型91看片网站能自動調溫、降溫除濕功能,調溫91看片网站集除濕,製冷功效於一
了解詳情摘要分析調溫91看片网站中雙冷凝器不同連接模式下的不同調溫方式和調溫效果,並對各模式進行比較。關鍵詞調溫除濕串聯並聯電子調節閥TheanalysisofdifferentconnectmodesoftwocondensersofdehumidifierwithtemperatureadjustmentAB
了解詳情調溫型91看片网站是一種除濕時可在一定範圍內調節出風溫度的冷凍式91看片网站。調溫型91看片网站出風溫度一般不能在最低值到最高值之間連續變化,即有部分溫度範圍是出風溫度無法達到的。在調溫除濕模式下,對於傳統的調溫型91看片网站而言,即使室外風冷冷凝器的風機或水冷冷凝器水泵流量增至最大,室內冷凝器的散
了解詳情調溫除濕設備用蒸發器來給空氣降溫除濕,並回收係統的冷凝熱,彌補空氣中因為冷卻除濕時散失的熱量,是一種高效節能的除濕方式,已經廣泛應用於國防工程、人防工程、煙草及石化行業、地鐵車站、航天領域淨化工程、實驗室、電訊器材室、檔案室、食品房、製藥或膠片車間、特種玻璃製造、糧食、木材等的除濕幹燥和高濕空間的除
了解詳情1.2.2第二模式(圖4)在該模式中,從壓縮機出來的製冷劑分成兩路:一路進入冷凝器C2,另一路進入旁通路,而後通過冷凝器C2的製冷劑和旁通路的製冷劑匯合後再通過冷凝器C1。在管路上安裝一電子三通調節閥來調節通過冷凝器C2和旁通路的製冷劑流量。當截止通過C2的製冷劑,讓所有
了解詳情